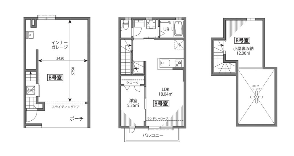
Kraum国分寺 feature design plan location ショールーム 物件概要 設備概要 user review A号室M様 user review C号室S様 お問い合わせ feature design plan location ショールーム 物件概要 設備概要 user review A号室M様 user review C号室S様 お問い合わせ plan ガレージと共生する暮らし ガレージの利用用途は自在、ライフスタイルに合わせた使い方 Kraum国分寺は単なるガレージハウスではありません。インナーガレージでは車・バイクの安全な格納から絵画・陶芸・ジオラマなど様々なシチュエーションに対応出来ます。ガレージ部分にはホビーライフを満喫出来る工夫、居住スペースにはリラックス出来る開放感ある工夫をふんだんに取り入れ住む人のライフスタイルを応援します。 ガレージ部分の特徴 ガレージ内の床材は「カラクリート仕上げを採用」・耐摩耗性能が約4倍・表面が滑りにくい・粉塵の発生を抑える・衝撃に強い・コンクリートに染み込むので?れない・油汚れに強く水拭きが可能・床は勾配をつけているため、排水も気にならない 電動シャッターを備え電源コンセントを多く配置 ガレージのシャッターは電動式のため、開け閉めに苦労せず手を汚しません。また、シャッターのカラーに合せガレージ内壁は一部アクセントクロスを使用し、一体感のあるデザインに仕上がります。さまざまな使用用途・レイアウトに備え、ガレージ内にはコンセントを最大6か所設置しています。また、電力消費の多い家電や大容量工具の使用に備え、200Vのコンセントも配置。ガレージ内は作業内容によって悪影響をださないためにエアコンは未装備としていますが、設置スペースは確保されています。 居室部分の特徴 開放感ある吹き抜けロフトスペースと水回り設備 リビングダイニングスペースの天井は吹抜けになっているため開放感や明るさを演出。天井にはスロープシーリングファンを装備しています。インテリアひとつだけではなくエアコン使用時は温度を一定に保ち大幅な節電効果をもたらします。尚、生活空間には能力の高いエアコンの設置を予定しています。また、全戸にバルコニーが完備されていますので洗濯物を干すことも可能です。大きいロフトは全戸に完備されており約7帖~9帖のスペースを確保しています。ガレージとは別のもうひとつのホビースペースや書斎としてご利用いただけます。水廻り設備は、トイレには温水洗浄機能付き便座を採用。また、キッチンにはシステムキッチンを採用していますがB,C,D号室は使い易いカウンターキッチン仕様にしています。 隣接の音を極力消去 間取り配置を工夫することにより角部屋を多く確保した配置 各住戸との敷地の区切りは植栽を植え込み、独立性を重視し景観等の効果を高めています。また、お車は住戸前の専用敷地に1台駐車が可能です。ガレージ内にもう1台お車を止めることができますので最大で2台駐車可能です。玄関から直接2階の住居スペースに上がれるため、ガレージ内のプライバシーを守り来訪者を迎え入れます。ガレージ内部と住戸階段との仕切りは外用の防火扉(スライド式)を採用していますので防火や防音効果に優れた設計となっています。また、隣接する住戸との壁は2重壁構造にしているため、音漏れを軽減するよう配慮しています。 間取り A号室 67.90㎡+ロフト15.31㎡ B号室 67.90㎡+12.00㎡ C号室 67.90㎡+ロフト12.00㎡ D号室 67.90㎡+ロフト12.00㎡ E号室 72.87㎡+ロフト13.27㎡ F号室 72.87㎡+ロフト13.27㎡ SHOWROOM